【园区招商】柳北区工业园区三合村集体经济产业园
沙塘镇三合村集体经济产业园隶属于白露工业园区, 是由柳北区政府主导,沙塘镇三合村集体经济联合社投资建设,市场主体自主经营的纺织服装、鞋、帽及旅游装备制造、机械加工制造业及传统汽车部件及新能源汽车零部件制造业、高端装备制造等产业集聚区。一期园区占地12多亩,将联合白露工业园区联合打一类工业及配套服务为一体的综合体,一期竣工厂房面积约19247.88平方米,计划将引进各类纺织服装、鞋、帽及旅游装备制造、机械加工制造业、传统汽车部件及新能源汽车零部件制造业、高端装备制造企业。
该项目位于白露工业园内,西北侧有北外环路、白露大桥及华云路,北侧有马厂路,东南侧有前锋路,西南侧与银鹤路相邻;白露大道、北外环路、前锋路以及马厂路形成一个环形路网,交通十分便利。

三合村村集体经济产业园(一期)项目为总平面规划用地面积16742.52平方米,约25亩,为轻工业用标准厂房园区。一期项目2#标准厂房、3#标准厂房,总建筑面积约19247.88平方米,建筑及安装总投资约4395万元。配备门卫室及变压器等设备用房,及大门围墙、道路、机动车、非机动车停车位、水沟、消防水池等各种配套设施。建筑密度为:40%,容积率为:2.0。


项目效果图
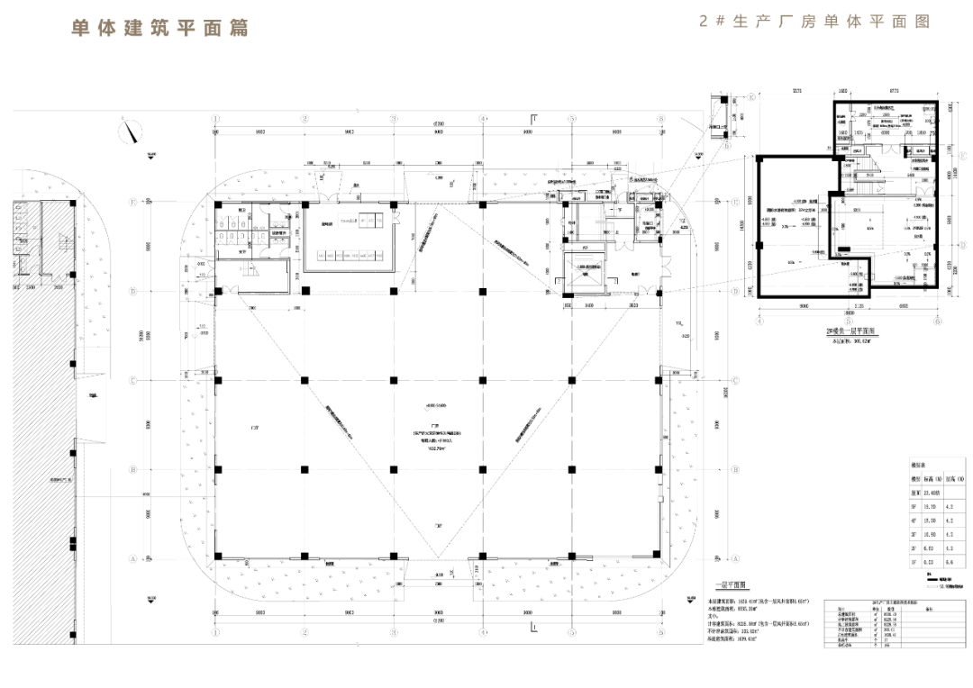
2#标准厂房:建筑面积8229.58平方米,地下室建面积305.62平方米。2#生产厂房分为地下1层、地上5层。建筑总高度23.4米,其中负一层层高4.9米,一层层高6.6米,二到五层工层高为4.2米,建筑总高度23.4米,每层厂房面积1645.91平方米,±0.000绝对高程为94. 6m。


3#标准厂房:建筑面积10712.68平方米,建筑总高度23.4米,地上5层,其中一层层高6.6米,二到五层层高为4.2米,每一层的面积2127.93平方米,±0.000绝对高程为94.75m。



柳北区投资促进局
0772-2513801
 微信公众号
微信公众号
							
 微博
微博
							
 
				 
			

 桂公网安备 45020502000143号
桂公网安备 45020502000143号